Авторизация
 
  • 18:00 – Александр Литвинкович: создатель энергоэффективного будущего в строительстве 
  • 11:26 – Поправки к Жилищному кодексу 
  • 11:42 – Школа 21 века... 
  • 21:21 – Как приобрести жилье в кредит в Беларуси? 
  • 21:15 – Влияние человекоцентристского дизайна на управление коммерческой недвижимостью 

Модульный дом Vimob


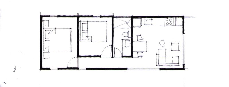
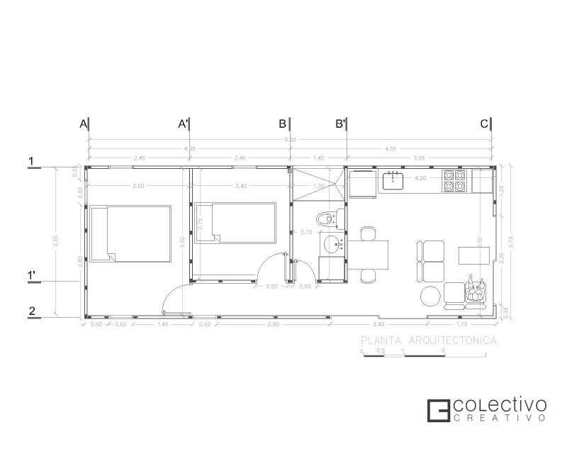
Модульный дом Vimob создан архитекторами Colectivo Creativo и установлен в районе Валье-дель-Каука (Колумбия). Конструкция собрана в месте, где соорудить обычный дом было бы невозможно по причине труднодоступности выбранной местности. Данное решение жилого пространства отличается чистыми, простыми линиями, пристальным вниманием к каждой детали и натуральной цветовой гаммой.

 

Модульный дом Vimob

 

Такой дом одновременно и гармонирует, и выделяется на фоне окружающей природы. Конструкция немного приподнята над уровнем земли, кажется очень лёгкой и стремящейся ввысь. В интерьере преобладает древесина, а в зоне отдыха спроектированы большие раздвижные окна, стирающие границы между внешним и внутренним мирами, предлагая лёгкий доступ к террасе. Быстрая сборка элементов модульной конструкции не потребовала специальных инструментов и особых усилий. Простота монтажа и демонтажа позволяет устанавливать такой модульный дом на вершине склона или на самом берегу океана, где остаётся только любоваться пейзажами и наслаждаться жизнью.

 

Фотографии Модульного дома Vimob: Felipe Orvi

 

 

Модульный дом Vimob

 

 

 

Модульный дом Vimob

 

 

 

Модульный дом Vimob

 

 

 

Модульный дом Vimob

 

 

 

Модульный дом Vimob

 

 

 

Модульный дом Vimob

 

 

 

Модульный дом Vimob

 

 

 

Модульный дом Vimob

 

 

 

Модульный дом Vimob

 

 

 

Модульный дом Vimob

 

 

 

Модульный дом Vimob

 

 

 

Модульный дом Vimob

 

 

 

Модульный дом Vimob

 

 

 

Модульный дом Vimob

 

 

 

Модульный дом Vimob

 

 

 

Модульный дом Vimob

 

 

 

Модульный дом Vimob

 

 

 

Модульный дом Vimob

 

 

План Модульного дома Vimob

 

 


 

 hqroom.ru

 


Новости компаний
{banner}
Акции и скидки
Мы ONline